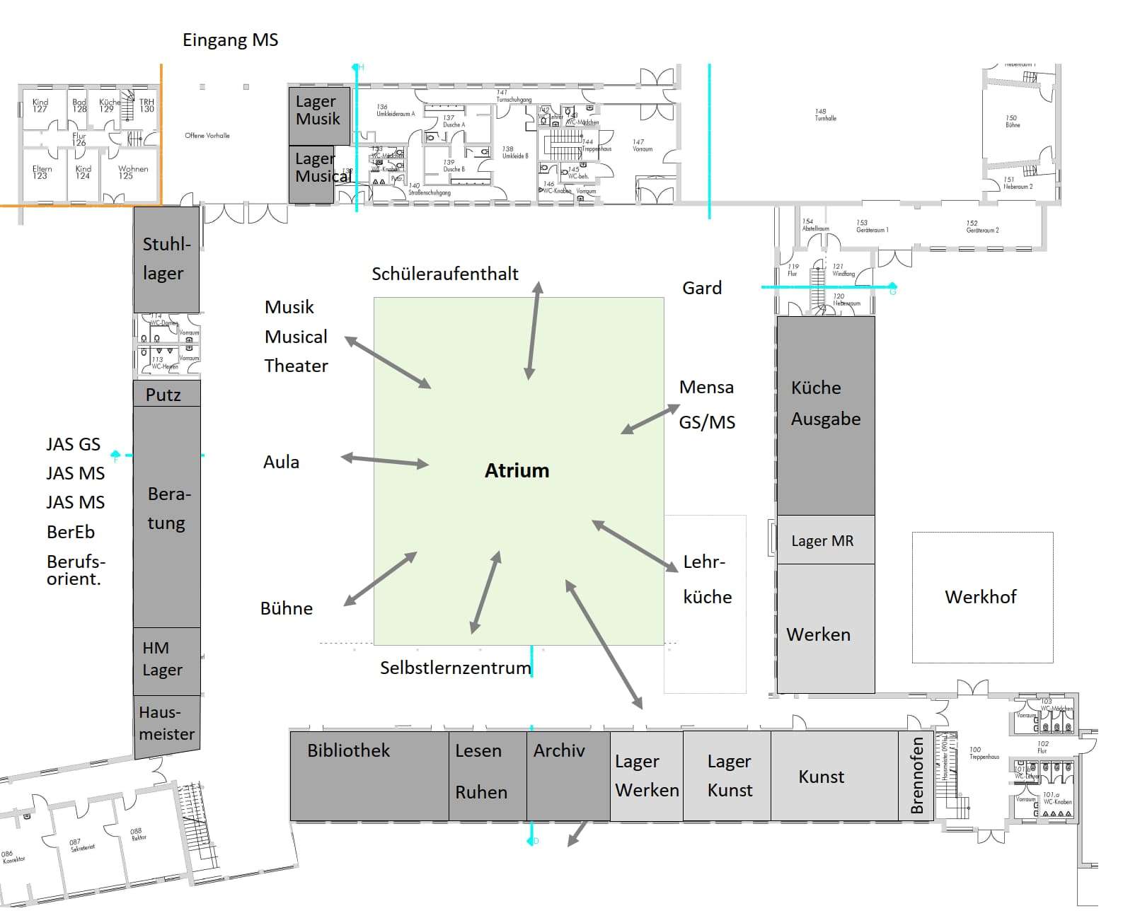
Mittelschule auf dem Lindenberg in Kempten

Einwohnerzahl: > 30.000
Auftragsart: Schulentwicklung, Neubau
Schulformen: Sek I & Sek II
Anzahl Schulen: 1

Erstellung einer Machbarkeitsstudie für die Mittelschule auf dem Lindenberg; Neubauplanung Phase 0

Ansprechpartner: Hr. Geywitz der Stadt Kempten (Allgäu)
Bearbeitungszeitraum: 2017/2018
Projektvolumen ca. 14 Mio. € netto